时间:2019-03-11 12:41来源: 作者: 点击:次

© Rasmus Hjortshõj
Frederiksvej幼儿园是2011年的一个建筑设计竞赛,最后由COBE和Preben Skaarup Landskab景观设计、Søren Jensen 工程设计、Learning Spaces项目顾问共同赢得。幼儿园于2016年2月4日由市长正式宣布启用,标志着项目的完成。

© Rasmus Hjortshõj
幼儿园希望摆脱传统的那种大规模日托幼儿园,打造一个充满童趣的小村庄。小尺度村庄氛围的营造是通过将建筑物分成11个小房子,以不同方向联合在一起实现的。幼儿园的各种玩耍娱乐空间都围绕着两个冬季花园,出现了很多由孩子们自己塑造的小而个性化的场所。

底层平面图

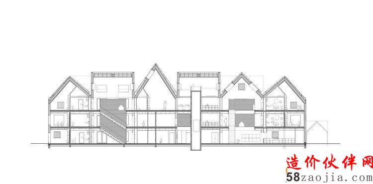
剖面图
“我们想创建一个为孩子们的成长提供最好环境的幼儿园,促进他们的学习能力与创造力。孩子是我们最宝贵的资源,让他们有一个快乐安全的童年十分重要。现在有一种趋势,很多人希望幼儿园能够更大一些,但对于我们来说,在幼儿园里为儿童们的小世界创造亲密和有趣的空间是非常重要的,他们将在那里度过很长一段时间。

© Rasmus Hjortshõj
多元化是设计的关键词,我们创造了各种各样的房间,这些房间为孩子们提供了一年四季不同类型的活动。”COBE创始人兼创意总监Dan Stubbergaard说。

© Rasmus Hjortshõj
Frederiksvej幼儿园为孩子们创造了建立独立小型个性化游戏空间的机会,同时,室内联通与清晰的流线组织也被作为重点考虑。建筑两端的两个中庭连接不同的楼层和分组。中庭也作为中央的活动聚集点,在这里孩子们、员工和家长之间可以举行一些非正式的会议。连贯简洁是建筑流线概念设计的关键。

© Adam Mørk
“我们努力简化房屋建构方式,让它们看起来像是一个可以模仿的漫画让孩子们可以去临摹。例如,屋顶线通过隐藏的下水管和精准的材料衔接保持整洁,窗户也经过精心设计是她们看起来好像没有框架—因为小孩子可能会画它们,”Dan Stubbergaard说。

© Rasmus Hjortshõj
围绕着主幼儿园,位于游乐场区域的另外六个较小的房屋用于存放婴儿车、玩具和工具。在主幼儿园大楼内,一个个小房屋形状的空间都是厨房、摇篮室、游戏室和用来给婴儿换尿布的地方。所有这些都符合小村庄环境的主要概念。

© Rasmus Hjortshõj
这11个房间的位置都稍微偏移,以便打碎整个幼儿园整体感。从外面看,外墙的偏移将幼儿园氛围了较小的户外区域和游乐区,也让阳光能够顺利进入室内。幼儿园由2至3层楼组成,每个楼层都有独立的室外空间。

© Adam Mørk
幼儿园以当前所在街道命名,有公寓楼、别墅和小花园。新的幼儿园适应了当地社区的尺度,反映了当地高低不等的斜屋顶们。Frederiksvej幼儿园与2015年5月开放,目前可容纳182名从幼儿到6岁的儿童。
项目信息
建筑师:COBE
地址:腓特烈斯贝, 丹麦
建筑面积:1700.0 平方米
项目年份:2015
摄影师:Adam Mørk
还想看更多建筑资讯、建筑新闻?请浏览文创资讯建筑频道