Tulips Chen
设为首页
加入收藏
网站地图
网站首页
建筑问答
造价动态
建筑资讯
专业资料
专家分析
建材行情
造价指标
政策法规
建筑私活
热门搜索:
工程造价管理
工程量计算式
造价
福州
定额
公式
当前位置:
建筑资讯网
>
建筑资讯
>
设计
>
超现代装饰家居室内设计
时间:
2012-11-28 13:29
来源:
作者:
点击:
次
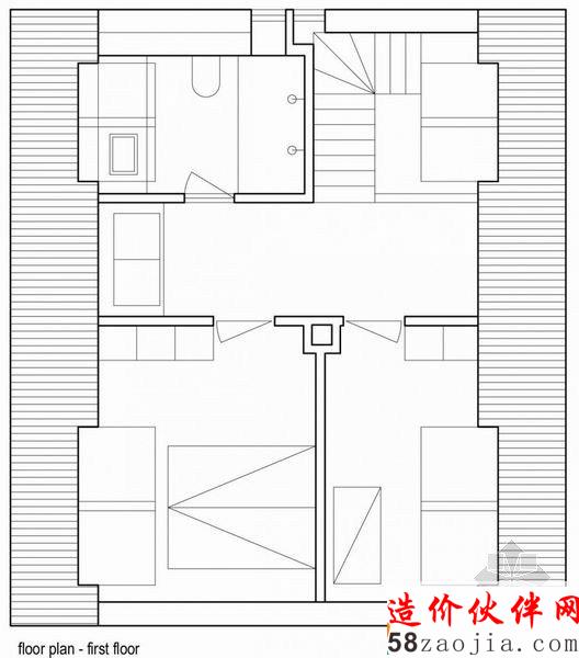
超现代装饰家居设计这是位于丹麦Humlebaek House设计项目是由Norm Architects负责的,高度现代化的设计,灵感来源于周围魅力的自然环境,良好地采光条件,靠近水源,天然的地理优势。
打印
相关内容
碧桂园携手中国好声音总冠军张磊
信贷投放回落 货币政策将更重结
绿色建筑携手数字科技 营造健康
新发展格局|雅居乐刘同朋:战略
统计局:前8月房地产销售额增速
年中看数据丨绿地上半年业绩逐季
北京将积极探索宅基地有偿退出机
重要时刻获政策大礼包 深圳土地
信息展播台
热门排行
泰国清莱安纳塔拉金三角度假村 环抱天
巴厘岛绿色竹屋度假村设计
成都“新名片”之环球中心天堂洲际大饭
共议行业热点、享年度荣耀 CIID哈尔滨
独家开创之安吉溪龙茶谷“野奢帐篷”度
问题答疑
·
建筑资讯网
·
会员服务
·
联系我们
·
广告服务
·
申请链接
·
专家团队
·
造价QQ群
·
部分内容收集于互联网如有侵犯您的权利请联系我们及时删除
建筑资讯网
ICP备案号:
闽ICP备12001983号-6