时间:2014-03-19 09:23来源: 作者: 点击:次
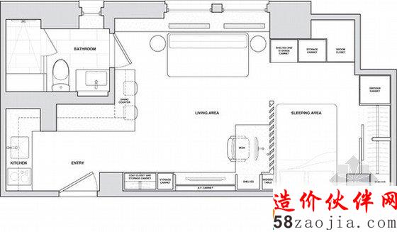
纽约曼哈顿31平方小户型家装,由Allen+Killcoyne Architects设计,吃饭、工作、睡觉被安排在一个空间中,有一个较大的橱柜,能够满足储物需求,因此空间给人的感觉并不是很小。卧室被巧妙的隐藏在百叶窗隔断后,感觉不那么幽闭,只有坐在书桌正面才能看见卧室的情况。睡眠区的天花板上有一个隐形的陷阱门,翻转出来就是一个平板电视。厨房则被藏进角落中,不会让人觉得侵占了生活区域。
关键词:小户型 家装设计

巧妙设计!纽约曼哈顿31平方小户型家装设计

巧妙设计!纽约曼哈顿31平方小户型家装设计

巧妙设计!纽约曼哈顿31平方小户型家装设计

巧妙设计!纽约曼哈顿31平方小户型家装设计

巧妙设计!纽约曼哈顿31平方小户型家装设计

巧妙设计!纽约曼哈顿31平方小户型家装设计

巧妙设计!纽约曼哈顿31平方小户型家装设计

巧妙设计!纽约曼哈顿31平方小户型家装设计