时间:2014-08-29 01:06来源: 作者: 点击:次

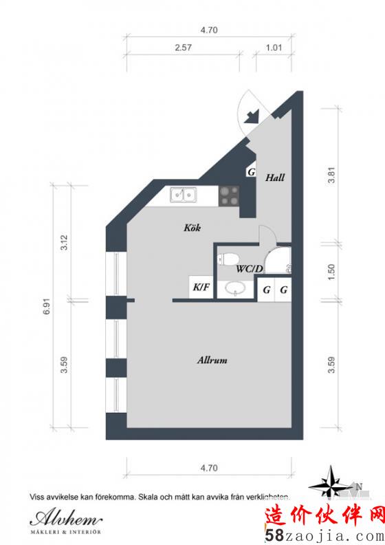
位于瑞典哥德堡一座上世纪的建筑内面积约为33平米小公寓,屋主单身居住,所以一切以自己喜欢舒适为主,将睡床安排在了客厅沙发旁,白色为底的空间,十分良好的采光,加上低矮的家具,绿植点缀,小空间依旧可以温馨舒适!

小户型“创意设计”之哥德堡33平米单身公寓
小户型“创意设计”之哥德堡33平米单身公寓
小户型“创意设计”之哥德堡33平米单身公寓
小户型“创意设计”之哥德堡33平米单身公寓
小户型“创意设计”之哥德堡33平米单身公寓
小户型“创意设计”之哥德堡33平米单身公寓
小户型“创意设计”之哥德堡33平米单身公寓
小户型“创意设计”之哥德堡33平米单身公寓
小户型“创意设计”之哥德堡33平米单身公寓
小户型“创意设计”之哥德堡33平米单身公寓
小户型“创意设计”之哥德堡33平米单身公寓
小户型“创意设计”之哥德堡33平米单身公寓
小户型“创意设计”之哥德堡33平米单身公寓
小户型“创意设计”之哥德堡33平米单身公寓
小户型“创意设计”之哥德堡33平米单身公寓
小户型“创意设计”之哥德堡33平米单身公寓
相关内容