绍兴世茂广场店“意式”菲滋冠军餐厅
时间:2015-03-31 02:42来源: 作者: 点击:次
绍兴世茂广场店“意式”菲滋冠军餐厅,设计为了营造意式休闲轻松的氛围,未运用过多的技巧,保持简洁轻松时尚的信念;利用合理的光线、自然的材料、温馨的色彩、简洁的造型,回归质朴回归经典。

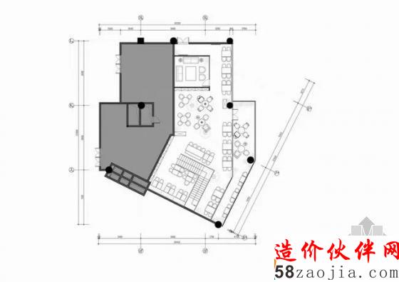
菲滋冠军餐厅,菲滋,源自英文FIZZ,主张时尚、年轻、有活力。此次世茂广场店,项目面积为650平方米,取“冠军”二字,集十年餐饮经验总结,为树未来意式西餐品牌之旗帜,装修上更加时尚自由、产品上更加精致美味、服务更加细致贴心。故设计为了营造意式休闲轻松的氛围,未运用过多的技巧,保持简洁轻松时尚的信念;利用合理的光线、自然的材料、温馨的色彩、简洁的造型,回归质朴回归经典。

高挑裸露的空间内,随意吊挂的是彩色玻璃吊灯;餐位布置轻松尺度合理,用餐无拘束;水泥漆墙面的“反装修”,配合的是温馨实木餐桌和时尚的意大利原版餐椅;在这里仿佛置身于异域,享受的是意大利经典美食…

绍兴世茂广场店“意式”菲滋冠军餐厅

绍兴世茂广场店“意式”菲滋冠军餐厅

绍兴世茂广场店“意式”菲滋冠军餐厅

绍兴世茂广场店“意式”菲滋冠军餐厅

绍兴世茂广场店“意式”菲滋冠军餐厅

绍兴世茂广场店“意式”菲滋冠军餐厅

绍兴世茂广场店“意式”菲滋冠军餐厅

绍兴世茂广场店“意式”菲滋冠军餐厅

绍兴世茂广场店“意式”菲滋冠军餐厅

绍兴世茂广场店“意式”菲滋冠军餐厅

绍兴世茂广场店“意式”菲滋冠军餐厅

绍兴世茂广场店“意式”菲滋冠军餐厅

绍兴世茂广场店“意式”菲滋冠军餐厅

绍兴世茂广场店“意式”菲滋冠军餐厅