日式拉面馆“变身”独特韵味工业风咖啡厅,街头元素的表现在二楼有了更多层次,水泥与文化石墙表现粗犷的视线触感,手刮的扇型浪纹造型,让单调的水泥有了纹理的丰富。

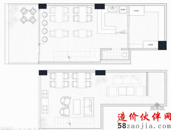
日式拉面馆“变身”独特韵味工业风咖啡厅,建筑原先是拥有浓厚日式氛围的拉面店,后改造为贴合年轻人的工业风咖啡厅,在此案例上,尽量保持原先的格局,运用创意十足的材质运用手法,让空间在风格、选色上有了截然不同的转变。铁件的运用让空间充满雅痞的的街头意味。

街头元素的表现在二楼有了更多层次,水泥与文化石墙表现粗犷的视线触感,手刮的扇型浪纹造型,让单调的水泥有了纹理的丰富。创意的材质运用,让工业风格跳脱以往的不修边幅,添入随性自由的户外、街头元素,使空间的故事性更为丰富。

日式拉面馆“变身”独特韵味工业风咖啡厅

日式拉面馆“变身”独特韵味工业风咖啡厅

日式拉面馆“变身”独特韵味工业风咖啡厅

日式拉面馆“变身”独特韵味工业风咖啡厅

日式拉面馆“变身”独特韵味工业风咖啡厅

日式拉面馆“变身”独特韵味工业风咖啡厅

日式拉面馆“变身”独特韵味工业风咖啡厅

日式拉面馆“变身”独特韵味工业风咖啡厅

日式拉面馆“变身”独特韵味工业风咖啡厅

日式拉面馆“变身”独特韵味工业风咖啡厅

日式拉面馆“变身”独特韵味工业风咖啡厅