be simple,eat simple ,是由Brandon Agency和Anna Domovesova共同打造的 Simple休闲自助餐厅的设计理念。

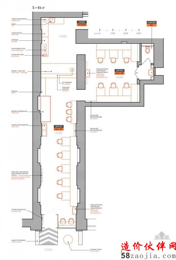
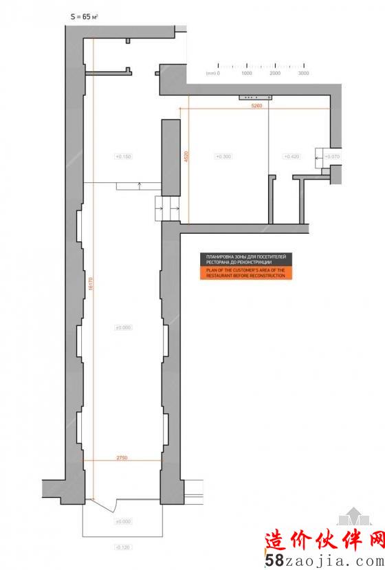
餐厅是位于基辅市中心一个砖砌建筑里狭长的过道,分为4.52×5.26米,16×2.7米两块,由于餐厅提供的是自助服务,顾客要挑选出一些自己喜爱的食物后才摆放好用餐,设计师在造型上安装了简单易懂的指示牌。而室内设计上只是在原红砖墙的基础上增加了白色、黑色与木色就轻松完成了让人放松的就餐氛围。

乌克兰“悠然自得”Simple餐厅设计

乌克兰“悠然自得”Simple餐厅设计

乌克兰“悠然自得”Simple餐厅设计

乌克兰“悠然自得”Simple餐厅设计

乌克兰“悠然自得”Simple餐厅设计

乌克兰“悠然自得”Simple餐厅设计

乌克兰“悠然自得”Simple餐厅设计

乌克兰“悠然自得”Simple餐厅设计

乌克兰“悠然自得”Simple餐厅设计

乌克兰“悠然自得”Simple餐厅设计

乌克兰“悠然自得”Simple餐厅设计

乌克兰“悠然自得”Simple餐厅设计

乌克兰“悠然自得”Simple餐厅设计

乌克兰“悠然自得”Simple餐厅设计

乌克兰“悠然自得”Simple餐厅设计

乌克兰“悠然自得”Simple餐厅设计

乌克兰“悠然自得”Simple餐厅设计

乌克兰“悠然自得”Simple餐厅设计

乌克兰“悠然自得”Simple餐厅设计

乌克兰“悠然自得”Simple餐厅设计

乌克兰“悠然自得”Simple餐厅设计

乌克兰“悠然自得”Simple餐厅设计

乌克兰“悠然自得”Simple餐厅设计

乌克兰“悠然自得”Simple餐厅设计

乌克兰“悠然自得”Simple餐厅设计

乌克兰“悠然自得”Simple餐厅设计