酷炫玻璃之城!上海儿童玻璃博物馆设计
时间:2015-05-20 15:10来源: 作者: 点击:次
2015年1月18日,上海乃至中国首个“以儿童为主角、以玻璃为主题”的全新互动式儿童文化体验馆:儿童玻璃博物馆(Kids Museum of Glass)盛大开幕。

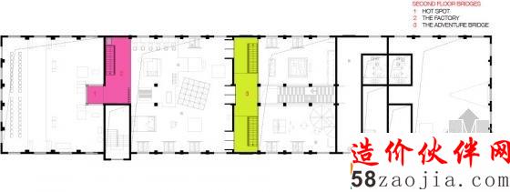
结合新鲜的创意、科技和设计,以及寓教于乐的理念,这个前身为玻璃仪器生产车间的空间被设计成为一个拥有展览、DIY创意工坊、两个咖啡吧餐饮区以及礼品店和派对空间于一身的场馆,孩子们在这里可以尽情发挥他们的创造力。整个博物馆的概念与设计由协调亚洲的创始人及执行总裁迪尔曼图蒙策划并设计完成,兼容了艺术、设计、现场演示、动画影片、创意游戏、互动装置及教育空间。整个2000平米的展馆空间专为4-10岁的儿童设计定制,让他们能更充分地以新奇有趣的方式了解玻璃的基本知识。

酷炫玻璃之城!上海儿童玻璃博物馆设计

酷炫玻璃之城!上海儿童玻璃博物馆设计

酷炫玻璃之城!上海儿童玻璃博物馆设计

酷炫玻璃之城!上海儿童玻璃博物馆设计

酷炫玻璃之城!上海儿童玻璃博物馆设计

酷炫玻璃之城!上海儿童玻璃博物馆设计

酷炫玻璃之城!上海儿童玻璃博物馆设计

酷炫玻璃之城!上海儿童玻璃博物馆设计

酷炫玻璃之城!上海儿童玻璃博物馆设计

酷炫玻璃之城!上海儿童玻璃博物馆设计

酷炫玻璃之城!上海儿童玻璃博物馆设计

酷炫玻璃之城!上海儿童玻璃博物馆设计

酷炫玻璃之城!上海儿童玻璃博物馆设计

酷炫玻璃之城!上海儿童玻璃博物馆设计

酷炫玻璃之城!上海儿童玻璃博物馆设计

酷炫玻璃之城!上海儿童玻璃博物馆设计

酷炫玻璃之城!上海儿童玻璃博物馆设计

酷炫玻璃之城!上海儿童玻璃博物馆设计

酷炫玻璃之城!上海儿童玻璃博物馆设计