北京法式新古典格调“现代抽象”别墅设计优雅的法式经典蓝、黄色丝质布艺与抽象地毯纹样、挂画、灯具相搭配,展现了精致、细腻兼具自由、奔放的空间格调。

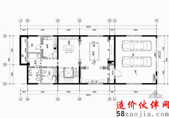
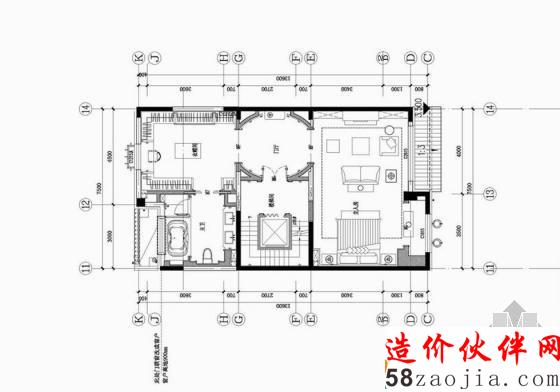
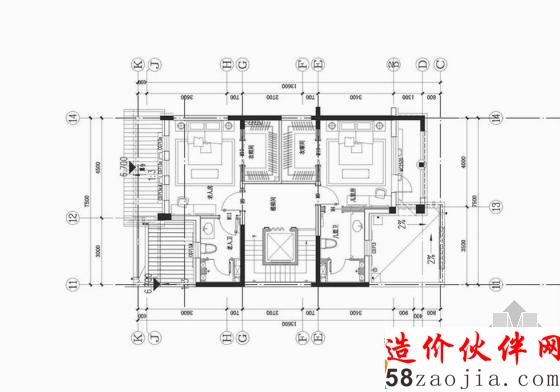
项目为一栋上下三层的别墅。一层公共区、二层主卧区、三层老人房与儿童房,地下面积是休闲区,上下楼层设计了电梯来辅助行动。设计将法式新古典格调与现代抽象艺术元素相结合,并伴有少量东方元素。整体空间以蓝、黄色为主基调,使用中性的黑、白色中和空间色彩。在奢华中增添了些许大气与庄重。

北京法式新古典格调“现代抽象”别墅设计

北京法式新古典格调“现代抽象”别墅设计

北京法式新古典格调“现代抽象”别墅设计

北京法式新古典格调“现代抽象”别墅设计

北京法式新古典格调“现代抽象”别墅设计

北京法式新古典格调“现代抽象”别墅设计

北京法式新古典格调“现代抽象”别墅设计

北京法式新古典格调“现代抽象”别墅设计

北京法式新古典格调“现代抽象”别墅设计

北京法式新古典格调“现代抽象”别墅设计

北京法式新古典格调“现代抽象”别墅设计

北京法式新古典格调“现代抽象”别墅设计

北京法式新古典格调“现代抽象”别墅设计

北京法式新古典格调“现代抽象”别墅设计