时间:2015-09-30 12:26来源: 作者: 点击:次

“三代同堂”难解“假山”烦恼
钱小姐从小就一直和她的爸爸妈妈,以及爷爷奶奶住在一起,一家五口人居住的这栋建于上世纪20年代的老洋房,位于上海黄浦区瑞金二路上。即使钱小姐已经出嫁,搬出了老屋,但老房屋不合理的规划布局以及存在安全隐患的居住环境,都让她始终放心不下。
【待解决问题】

1、采光不足,屋内非常昏暗;

2、接近90度的陡峭狭窄楼梯是生活大难题;

3、马桶的位置位于进门处,毫无隐私可言;
《梦想改造家》改造方案

改造后的假山一样的家的水彩画(柯明恩绘)
第一次在家中上下就像在假山中穿行,那时是艰难的。而假山终究是令人愉快的,这是设计师从这个家中学到的,柳亦春要做的就是让这个穿行,变的安全、方便、愉悦,那才是真正的假山一样的家。

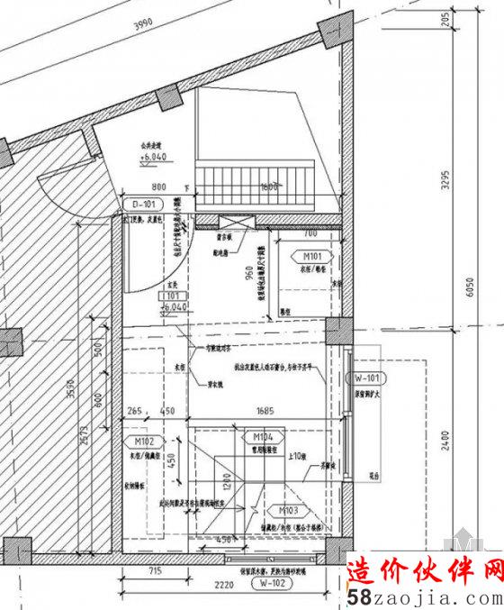
原始平面与修改平面布置对比
考虑到爷爷奶奶年事已高,为了使他们生活方便,设计师将厨房、客厅这两个老人最常待的地方搬到了二楼,被安置在两楼半的厕所,也便捷了老人的生活起居。三楼为客厅+厨房,四楼钱先生夫妇的空间。

最初方案中一楼的厨房被调整为收纳空间

厨房则被移至三楼客厅区域

窗洞解决了通风问题

效果图

程模型推敲

解决了横梁问题,原本必须不停“低头哈腰”才能穿行的空间,其舒适度与利用率大大提升。
《梦想改造家》设计亮点
【层间净高处理】
室内家的部分最难的是楼梯和层间净高的处理。因为房屋每层层高仅有2米,设计师柳亦春决定先从“释放”空间开始,通过科学的检测,拆除了穿插在房屋里的一些旧房梁。厚度为32cm的房梁原本是为了承受顶楼水箱和水的重量而定制的,水箱被废弃后厚重的房梁显得冗余,减弱薄房梁后利用可流动的高强混凝土浆料加强房梁安全性。

在给房屋矫形完成后,设计师又开始着手解决楼梯过陡的难题。原来的爬梯每一层为八级,每级踏步高至26.5公分,坡度在75度以上。为了解决“额头碰天花板”的问题,初次调整设计为9级,每级23-23.5公分高,但是经过实际模拟后发现每级踏步23.5公分对于老人而言还是太高,柳亦春不得不想尽各种办法,让楼梯既不碰头,又能降低踏高,最后还是采用了每层上10级,每级21公分高的设计,这样把踏步坡度减到45度以下。设计师还细心地在每级楼梯上都挖了一个洞,方便脚踩,也增加了安全性。

改造前楼梯状况

楼梯改造前后对比

计师在每级楼梯上都挖了一个洞,方便脚踩,也增加了安全性。
【扩大室内窄狭感】
柳亦春希望通过空间的调整来扩大室内的窄狭感,同时将原有室内像假山一样的逼仄空间改善为一种愉悦的经历。

图中4、5为原有窗洞6、7、8为后开天窗
一个家的面积可能是无法扩大的,但是利用建筑的方法,还是可以让人可感知的室内的空间感变大,一个比较行之有效的方法就是向室外借空间。这个住家和一般单元住宅的不同在于,除了下面两层和邻居相邻的墙体,它基本是四面凌空的,所以完全可以利用窗户将室内人的视觉引到室外,从而加大室内空间的延展度。

7、8窗洞采光示意图
原来的家每一个窗户外面都有自己搭设的小花台,上面有遮雨棚,这些花台经过整体的设计和整理,搁上花草,人的视觉自然就出去了。

在二层厨房客厅比较关键的区域,我们把窗户放大,局部利用墙体的厚度稍微外凸20公分,就形成了一个很好地扩大了空间的凸窗,凸窗外还设有花台。
三层爷爷奶奶的西窗外面是上部水箱的下部和邻居的屋顶,我们把窗户加大,做了通长的水平窗和花台,室内的空间完全延展了出去,就像住在一层的带院子的房间里。
《梦想改造家》Before&After
【爬梯before&after】

1楼爬梯改造前

1楼楼梯改造后
建筑师除了把楼梯坡度改至45度以下之外,同时设计了收纳功能。

2楼楼梯改造前

2楼楼梯改造后
钻孔机在屋顶水箱开窗的时候偶然得出一个漂亮的月饼形状,建筑师由此图形在空间中延伸出梅花型窗洞元素,游离在这个假山一样的园林中,会在不同的空间看到梅花以不同的用途出现,爷爷奶奶床头的灯具、女儿房间壁柜的梅花、楼梯的通风采光口……亲切感由此而生!

3楼楼梯改造后
【卫生间before&after】

卫生间改造前
因为老人原因,卫生间只能在入口用传统马桶,毫无隐私可言。

卫生间改造后
卫生间充分考虑老人沐浴时扶手、座椅。

卫生间改造后
【客厅before&after】

3F客厅改造前

客厅改造后

客厅家具大变身
【厨房before&after】

厨房改造前

厨房改造后
【书房before&after】

书房改造前

书房改造后

书房改造后

旧物改造
一件老家具在设计师的改造后,变成了两件新的桌子!

四楼大房间改造前

卧室内天井月饼形的花窗

4楼小厨房4楼设计了小厨房可满足简单的饮水、餐饮需求。

【小房间before&after】

小房间装修前

小房间改造后

小房间改造后

小房间通往露台的楼梯

4楼玄关
【4楼卫生间before&after】

4楼卫生间改造前

4楼卫生间改造后

4楼卫生间改造后

4楼卫生间改造后
保留原始楼顶窗洞,将自然光源引入卫生间。
【露台before&after】

露台改造前

室外楼梯改造前

室外楼梯改造后