时间:2016-12-15 11:12来源:建筑学院 · 作者: 点击:次

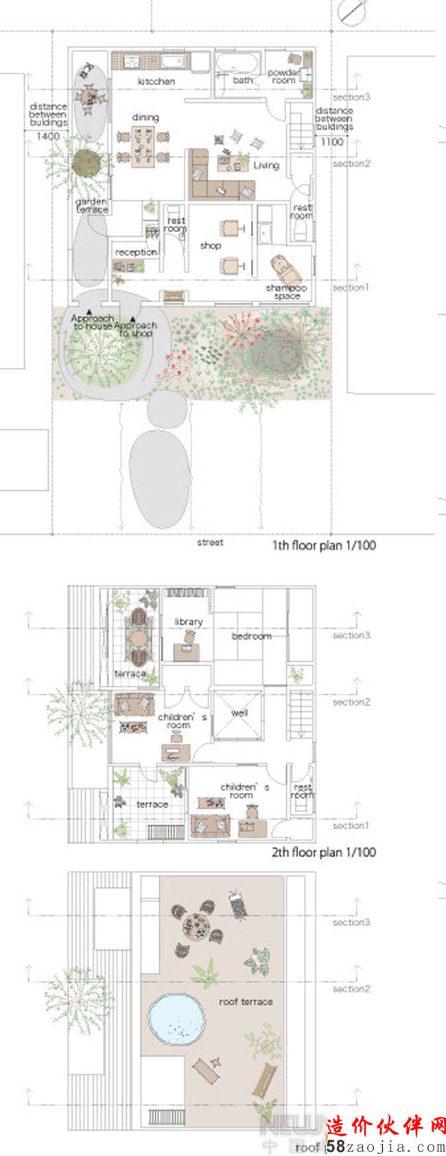
这个小住宅的一楼是一个美容院。上面两层居住着小美容店的老板,一对年轻的夫妇,以及他们3岁的女儿和一个刚刚出身的家庭成员。

周边大多是2层的住宅,这里很安静,住宅建成3层,就可以看见远山。

住宅与周围房屋的近距离使得打开窗户就没了隐私。所以建筑师考虑如何在这样一个紧迫的空间中创造出开放感。建筑师设计了一个贯通三层楼的大斜屋顶,斜屋顶的大开口带来自然光和空气,还有风景。

窗户,就是洞口,没有窗扇,而且其尺寸与周围的房子完全不同。看上去就像有一个放大尺寸的有趣模型。

当你行走在山间森林中,你周围没什么构筑物,但你依然能感到自己被包围。
在小路上,清风吹拂,树木作响,鸟儿欢歌,动物轻轻的脚步声,那是森林之语。建筑师想要在室内也打造出这种感觉,向城市开放或者天空开放。

否则,就如同处于低处,只能透过茂密的树叶依稀的看见蓝色的天空,沿途不都是这样的“外表”么。

我们能否在一个拥挤的住宅区中创建出这一切?在一个大大的光明屋顶下,你可以在几个半室外空间中遇见“外”。

建筑师希望创造一个外向的住宅,同时避规周围建筑从各个方向和角度而来的视线。

