时间:2012-12-17 00:59来源: 作者: 点击:次

建筑设计:nicholas burns associates
项目地址:新加坡
摄影师:patrick bingham hall
英文名称: sentosa house
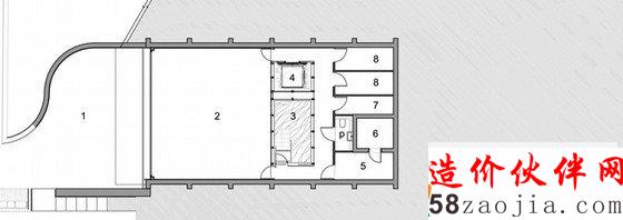
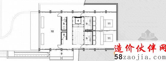
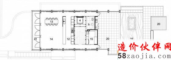
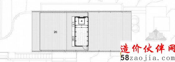
这是由nicholas burns associates设计的新加坡圣淘沙岛住宅。设计师利用周围的环境与空间逻辑创造出一座高效而永恒的建筑。矩形的规整用地导致了简单的平面形状,采用了简单的混凝土结构并弱化了一层空间,那里设置了车库、道路和水池。一个混凝土核为结构提供了内部支撑,并在其中设置了机械系统、主水管、垂直交通空间、电梯和高效的服务用房。所有外部空间都围绕着这个核心组织,一层有两个卧室,双层的保温玻璃幕墙为室内带来了外面丰茂的植物景观,面对街道的是一个小展廊。上层的主卧室朝向后院,休息室和书房位于前院方向,由一个通长的阳台连接起来。最后,在屋顶平台,人们可以享受到周围360度的全景景观。
建筑使用的材料都相当原生态,比如混凝土和钢构件,都未经过过分的精雕细琢。暴露的混凝土剪力墙外还设计了第二层表皮,采用了百叶一样的竖直回收柚木条装饰外表面,这样做不仅美观而富于韵律感,还使混凝土结构免受直接的日晒。现场浇筑的保温层有助于维持室内气温的稳定,使用中水系统减少了资源消耗。



















