时间:2013-08-15 16:19来源: 作者: 点击:次
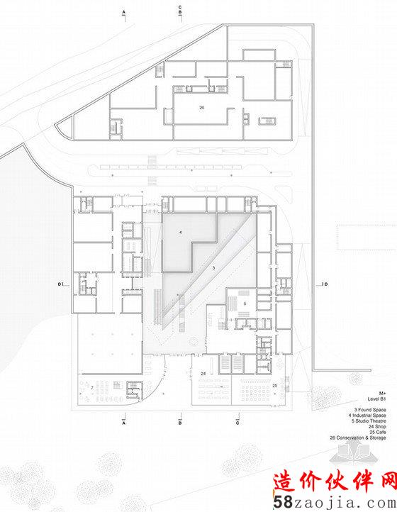
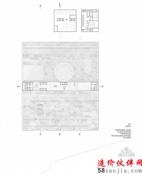
摘要:获胜的&的M +博物馆的设计,新添加的西九龙文娱艺术区,目前正在建设。在进程图中显示了明确的程序和构造面板;该架构将用来证明海滨地区的改变。它的空间将致力于展示艺术、设计、建筑和移动图像,原型白立方将被重构,通过元素来达到合并或分裂以产生小的额外的房间——这将区分建构内部区域的序列。集成放映室和一个所谓的工业空间被组合成一个程序复杂的博物馆。

建筑设计:赫尔佐格和德梅隆
项目位置:香港
项目时间:2013
图片来源:herzog & de meuro
一个中央冲积层用来固定在后工业时代的位置,机场快线隧道创建一个可描述内部循环的空隙。这个空隙可以说是合成的障碍,后工业时代将被运用,挑战馆长和游客之间创造和享受艺术的动态过程。博物馆的整体水平质量将雇用一个的“锚定房间”的网站,以及一个两层高的画廊,这个空间渗透着从玻璃和巨大的圆形抠图扩散的日光,使得视觉得以延伸。水平百叶窗沿立面通过精确间隔运行,这样使它能够全览周围的艺术家广场,公园和香港岛天际线的对面海港。LED系统集成到外墙,这将激活博物馆,沿侧安装的显示屏展现旋转的多媒体作品。

























译者:筑龙网 毛毛