时间:2013-11-16 18:46来源: 作者: 点击:次
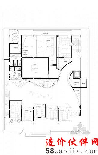
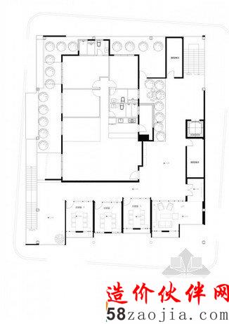
摘要:这是由Lab Modus设计的台湾“王子住宅售楼中心”。该地区位于台湾高速铁路桃园站附近的新开发区。设计包括一个两层楼高的矩形卷,和一个变形的双重分层金属百叶窗结构。

Lab Modus设计的台湾“王子住宅售楼中心”
建筑设计:Lab Modus
项目地址:台湾
建筑面积:1800平方米
建筑时间:2013年
图片来源:Lab Modus
设计包括一个两层楼高的矩形卷,和一个变形的双重分层金属百叶窗结构。该设计被叫做“Dancing box”(舞动的盒子)。设计师们计划为这一空旷的地区增加新的活力。这给动力学提出了巨大挑战。建筑师们致力于塑造一个满足商业活动的建筑环境,同时也将满足现在和未来的一些其它需求。所有的建筑利用周围空旷的背景,创建了一个连续的半透明项目。金属百叶窗为室内提供清新空气,同时可以欣赏到对应室内空间的精致。这样的百叶窗设计,也对室外的阳光和空气起到了过滤作用。

Lab Modus设计的台湾“王子住宅售楼中心”

Lab Modus设计的台湾“王子住宅售楼中心”

Lab Modus设计的台湾“王子住宅售楼中心”

Lab Modus设计的台湾“王子住宅售楼中心”

Lab Modus设计的台湾“王子住宅售楼中心”

Lab Modus设计的台湾“王子住宅售楼中心”

Lab Modus设计的台湾“王子住宅售楼中心”

Lab Modus设计的台湾“王子住宅售楼中心”

Lab Modus设计的台湾“王子住宅售楼中心”

Lab Modus设计的台湾“王子住宅售楼中心”

Lab Modus设计的台湾“王子住宅售楼中心”

Lab Modus设计的台湾“王子住宅售楼中心”

Lab Modus设计的台湾“王子住宅售楼中心”

Lab Modus设计的台湾“王子住宅售楼中心”

Lab Modus设计的台湾“王子住宅售楼中心”
译者:筑龙网 Stephen Jr.