在住宅用地十分紧缺的北京,我们通常都会遇到一些二手房改造的案例。像建于近十年左右的房子通常户型与结构都不太合理,在改造与设计上要付出比新建毛坯房难度更大。

北京一旧房改造无多余装饰实用性却面面俱到
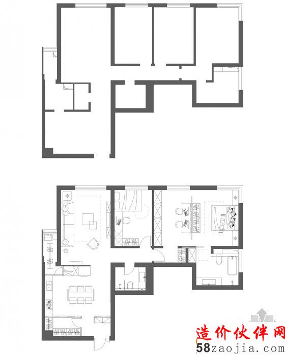
设计师把原有的三居两室变成两居两室,让主卧、书房与主卫变成了一个独立的套间,这样主人的使用性和私密性上可以得到很好的提升。

北京一旧房改造无多余装饰实用性却面面俱到
利用原有的厨房不能改动的管道承重墙做了储藏柜及嵌入式冰箱。厨房由原来空间分割一部分为鞋柜、储存间,合理利用了厨房面积同时也增多了使用者的储藏面积。

北京一旧房改造无多余装饰实用性却面面俱到

北京一旧房改造无多余装饰实用性却面面俱到

北京一旧房改造无多余装饰实用性却面面俱到

北京一旧房改造无多余装饰实用性却面面俱到

北京一旧房改造无多余装饰实用性却面面俱到

北京一旧房改造无多余装饰实用性却面面俱到
纯白的空间里看上去没有一点复杂的装饰,实用性却面面俱到。利用空间的错位设计得来的储存空间很好的满足了使用者需求,洗衣房的设计也规避了没有阳台户型的尴尬。

北京一旧房改造无多余装饰实用性却面面俱到

北京一旧房改造无多余装饰实用性却面面俱到

北京一旧房改造无多余装饰实用性却面面俱到

北京一旧房改造无多余装饰实用性却面面俱到

北京一旧房改造无多余装饰实用性却面面俱到
看似简单的设计伴随着的是对施工细节的高要求。业主的认可和支持让我们在软装的选择上都让这个平凡的纯白公寓精致不少。