时间:2014-08-29 01:17来源: 作者: 点击:次

普雷索尔校园
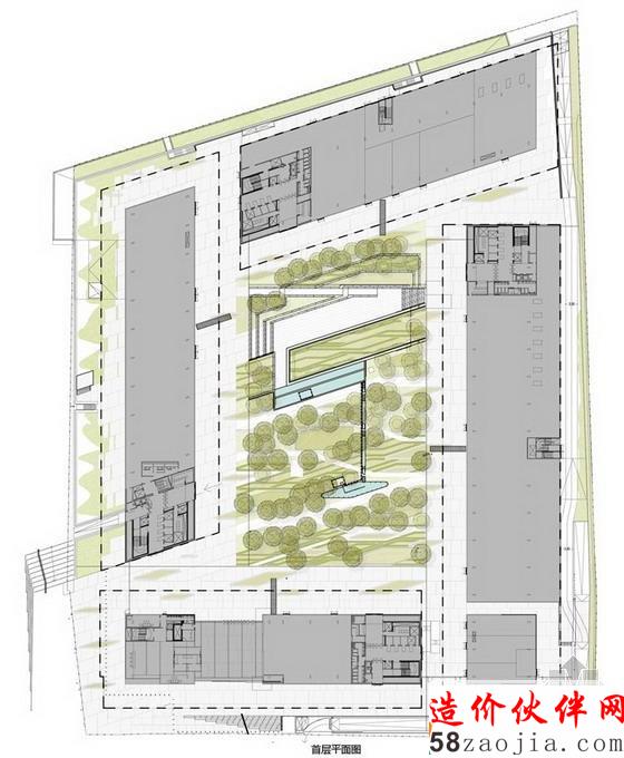
项目名称:普雷索尔校园(Campus Repsol)
建筑师:Rafael de La-Hoz
项目地点:西班牙 马德里
项目面积:123 000㎡
摄影:Filippo Poli
建筑设计与施工主要关注以下六个基本点:场地的可持续性、节水效率、能源与氛围、材料与资源、室内环境质量和概念创新。
普雷索尔校园位于马德里,建筑面积达123 000㎡,共包括四座建筑,隐匿在大型的中央花园四周,100株完美适应马德里气候且生长繁茂的树木为花园景致增色不少。
项目所在场地有发达的公共服务网络(公交、地铁、当地铁路、高铁等),且政府政策鼓励民众使用自行车和电动车辆等低排放量的节能运输工具。同时,建筑师采取了一系列措施建立与周围社区的良性关系。
花园中所选择的植被种类适应马德里气候,需水量较低,同时安装节水设备(浴室、水龙头、淋雨等),利用雨水灌溉。这些设计都降低了耗水量。
项目采用交互式的能量生成措施,比如利用太阳能光伏电板或天然气热泵来进行气候调控和生产热水。
从设计阶段开始,建筑师就选择了高回收率的材料,降低提取和加工原材料带来的负面影响,就地取材,尊重森林。

普雷索尔校园

普雷索尔校园

普雷索尔校园

普雷索尔校园

普雷索尔校园

普雷索尔校园

普雷索尔校园

普雷索尔校园

普雷索尔校园

普雷索尔校园

普雷索尔校园

普雷索尔校园

普雷索尔校园

普雷索尔校园

普雷索尔校园

普雷索尔校园

普雷索尔校园

普雷索尔校园

普雷索尔校园

普雷索尔校园

普雷索尔校园

普雷索尔校园

普雷索尔校园

普雷索尔校园

普雷索尔校园

普雷索尔校园

普雷索尔校园

普雷索尔校园
相关内容