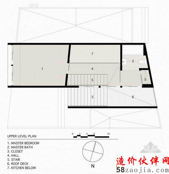
美国纽约现代住宅室内设计 时间:2012-08-30 23:55 来源: 作者: 点击:次 这座位于美国纽约州萨福克县Noyack Creek住宅是由设计师 Bates Masi 精心打造的。设计师巧妙地将原始的木板用作了墙壁,一种原木的气息点缀了整个室内空间。设计师将整个住宅的窗户都仔细地放置,以便提供最大化的日光和通风. (责任编辑:建筑小白)