瑞典设计师在一处陡峭的山坡上建造了一座乡村居室,这栋房子依山傍水,远眺着下方斯德哥尔摩群岛。这栋房子名为aspvik house,房子的设计让它完美地融入了起伏的地形中,同时,它还包含所有在斯堪的纳维亚气候里生活所必需的所有功能和设施。

瑞典绝壁上的乡村居室曝光依山傍水风水极佳!

瑞典绝壁上的乡村居室曝光依山傍水风水极佳!
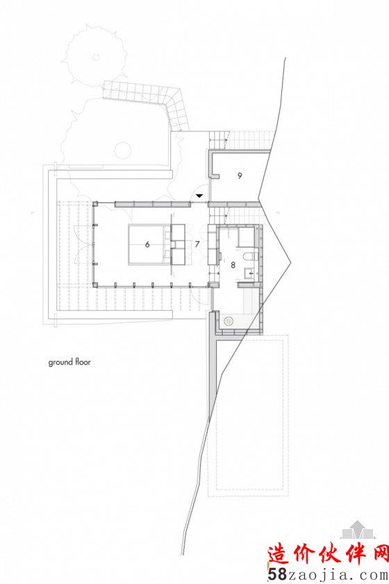
底层包含、一间房间、一个浴室和一间桑拿房,还有一个通向上层的楼梯,上层空间更大,包括厨房、餐饮区和生活区。一个定制的书柜完美融入了上层的整体布局中,既提供了一定的储存空间,同时还是楼梯和餐饮区的分界线。
房子的建造材料刻意保持原始和简单的风格,墙是由一排排胶合板制作而成,从“nero marquina”大理石和抛光黄铜等细节上也能看出来。在别的方面,精心挑选的奢华家具和标准颇高的各种产品也让整栋房子在视觉上更加有吸引力。

瑞典绝壁上的乡村居室曝光依山傍水风水极佳!

瑞典绝壁上的乡村居室曝光依山傍水风水极佳!

瑞典绝壁上的乡村居室曝光依山傍水风水极佳!

瑞典绝壁上的乡村居室曝光依山傍水风水极佳!

瑞典绝壁上的乡村居室曝光依山傍水风水极佳!

瑞典绝壁上的乡村居室曝光依山傍水风水极佳!

瑞典绝壁上的乡村居室曝光依山傍水风水极佳!

瑞典绝壁上的乡村居室曝光依山傍水风水极佳!

瑞典绝壁上的乡村居室曝光依山傍水风水极佳!

瑞典绝壁上的乡村居室曝光依山傍水风水极佳!

瑞典绝壁上的乡村居室曝光依山傍水风水极佳!

瑞典绝壁上的乡村居室曝光依山傍水风水极佳!

瑞典绝壁上的乡村居室曝光依山傍水风水极佳!

瑞典绝壁上的乡村居室曝光依山傍水风水极佳!

瑞典绝壁上的乡村居室曝光依山傍水风水极佳!